Passer les menus de navigations et aller au contenu

Local commercial à vendre

disponibilité 1T 2027

Ref : 33_0010

Mérignac (33)

125 m²

384 000 € HT
3 062 € HT/m²

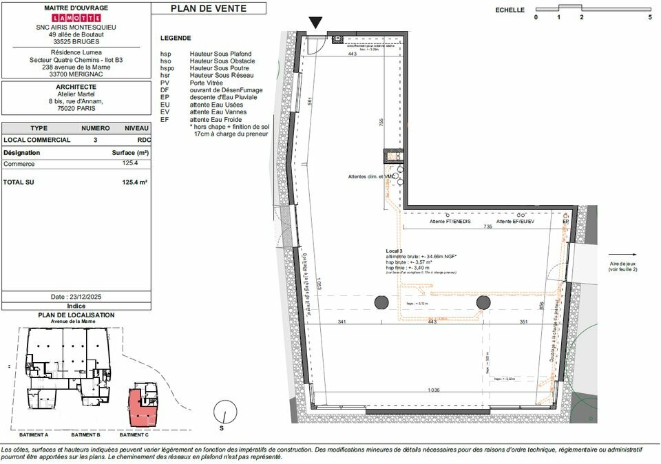
Local pour crèche de 125 m² - LUMEA - MERIGNAC

LAMOTTE ENTREPRISES & COMMERCES vous propose, au rez-de-chaussée de la résidence LUMÉA, un local à destination de crèche de 125 m².
Espace extérieur clôturé et privatif de 34 m².
Places de stationnement disponibles en sous-sol (prix de vente : 19 000 Euros HT / stationnement)
Local livré brut de béton, vitrines posées, fluides en attente
Ref : FG-33_0010

Les informations sur les risques auxquels ce bien est exposé sont disponibles sur le site Géorisques : georisques.gouv.fr

Caractéristiques du bien

  • Transports à proximité

Environnement et accès

Bus et tramway a proximité immédiate

Découvrir le quartier

Local commercial à vendre

Nous vous proposons également

Mérignac (33) - Local commercial à vendre

  • Local commercial
  • 413 m²

1 213 000 € HT
2 940 € HT/m²

Découvrir

Bruges (33) - Local commercial à vendre

  • Local commercial
  • 538 m²

1 655 938 € HT
3 078 € HT/m²

Découvrir