Passer les menus de navigations et aller au contenu

Bureaux à louer

disponibilité 1T 2027

Ref : 35_0095

Rennes (35)

564 m²

111 486 € HT-HC/an
198 € HT-HC/m²/an

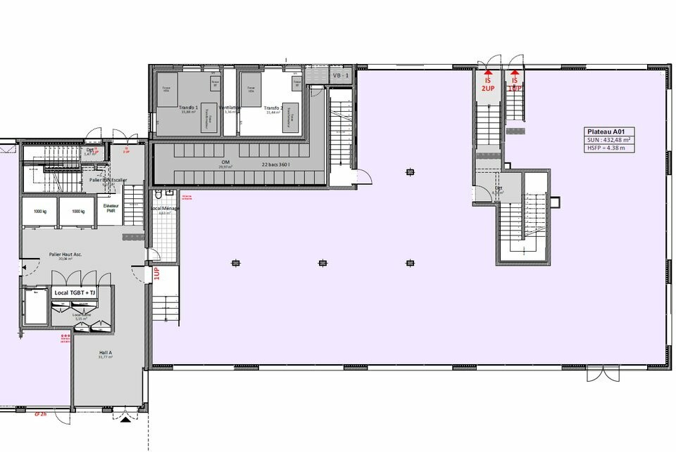
564 m² en R+6 - RENNES VIASILVA - LA RUCHE

LAMOTTE ENTREPRISES & COMMERCES vous propose, au 6ème étage de l'ensemble immobilier "LA RUCHE" (plus de 22 000 m² de bureaux et commerces) un plateau de 564.47 m², dont 21.14 m² de quote-part sanitaires et 38.45 m² de quote-part de parties communes.
8 parkings en sous-sol.
Loyer : 111 486 Euros HT / an , stationnements en sus
Loyer unitaire stationnements :
900 Euros HT / stationnement sous-sol / an
Ref : FG-35_0095

Les informations sur les risques auxquels ce bien est exposé sont disponibles sur le site Géorisques : georisques.gouv.fr

Caractéristiques du bien

  • Taxe foncière : 25 € HT/m²/an
  • Charges annuelles : 28 € HT/m²/an
  • Transports à proximité

Environnement et accès

Proximité à la rocade

Desserte directe par la Ligne B du métro - arrêt "ATALANTE"
Ligne de bus C4
Parking relai et gare bus à proximité
A venir : ligne T1 du futur Trambus

Découvrir le quartier

Bureaux à louer

Nous vous proposons également

Rennes (35) - Bureaux à louer

  • Bureaux
  • 195 m²

17 550 € HT-HC/an
90 € HT-HC/m²/an

Découvrir

Rennes (35) - Bureaux à louer

  • Bureaux
  • 280 m²

25 200 € HT-HC/an
90 € HT-HC/m²/an

Découvrir

Cesson-Sévigné (35) - Bureaux à louer

  • Bureaux
  • 145 m²

18 000 € HT-HC/an
124 € HT-HC/m²/an

Découvrir

Saint-Grégoire (35) - Bureaux à louer

  • Bureaux
  • 344 m²

44 720 € HT-HC/an
130 € HT-HC/m²/an

Découvrir

Cesson-Sévigné (35) - Bureaux à louer

  • Bureaux
  • 230 à 553 m²

À partir de135 € HT-HC/m²/an

Découvrir

Saint-Grégoire (35) - Bureaux à louer

  • Bureaux
  • 875 à 3018 m²

À partir de155 € HT-HC/m²/an

Découvrir