Passer les menus de navigations et aller au contenu

LA SURBOISIERE

Commercialisation terminée

Haute-Goulaine (44)

Découvrir le quartier

Centre-ville de Nantes à 12 km

Centre-bourg à proximité

Lignes de bus

Commune appréciée des jeunes familles, Haute-Goulaine se trouve à seulement 12 kilomètres du centre-ville de Nantes. Écoles maternelles et élémentaires, infrastructures sportives et culturelles, réseau de transport, commerces de proximité et plus encore…

Connexions

  • Nantes à une dizaine de kilomètres
  • Lignes de transports en commun
  • Gare TGV/TER à Nantes

Vie quotidienne

Loisirs

Terrain à construire - La Surboisière à Haute-Goulaine (44) - Plan de situation - Lamotte Aménageur Lotisseur
Terrain à construire - La Surboisière à Haute-Goulaine (44) - Vue de quartier 1 - Lamotte Aménageur Lotisseur
Terrain à construire - La Surboisière à Haute-Goulaine (44) - Vue de quartier 2 - Lamotte Aménageur Lotisseur
Terrain à construire - La Surboisière à Haute-Goulaine (44) - Vue de quartier 3 - Lamotte Aménageur Lotisseur

LA SURBOISIERE Rue du Patis Forestier - LA SURBOISIERE 44115 Haute-Goulaine

Découvrir le programme

Un dernier terrain à bâtir

Possibilité de garage et jardin

Espaces boisés protégés

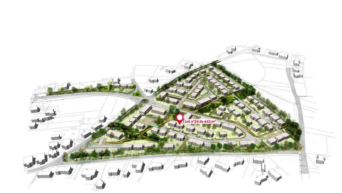
À proximité du centre-ville, Le Domaine de la Surboisière s’intègre dans un nouveau quartier résidentiel composé de maisons individuelles. Profitez de cette belle opportunité au cœur d’un ensemble savamment aménagé : un terrain à bâtir de 443 m², idéalement orienté et aux surfaces soigneusement étudiées.

Les atouts du lotissement et des terrains

  • Dernière opportunité
  • Cadre de vie résidentiel
  • Environnement préservé et dynamique
  • Accès vers les commerces et transports en commun
  • Terrain constructible de 443 m²
  • Surfaces soigneusement étudiées
  • Orientations idéales

Les informations sur les risques auxquels ce bien est exposé sont disponibles sur le site Géorisques : georisques.gouv.fr

Ref : 1112

LA SURBOISIÈRE – Terrains à bâtir à Haute-Goulaine (44)

L'agence de ce programme

Lamotte Promoteur Promoteur immobilier - logements neufs

1 rue Alain Barbe Torte
44200 Nantes

02 40 48 12 50 Découvrir l'agence

Horaires d'ouverture

  • lundi09:00 - 12:15/14:00 - 18:15
  • mardi09:00 - 12:15/14:00 - 18:15
  • mercredi09:00 - 12:15/14:00 - 18:15
  • jeudi09:00 - 12:15/14:00 - 18:15
  • vendredi09:00 - 12:15/14:00 - 18:15
  • samediUniquement sur rendez-vous
  • dimancheFermé
Garantie Immodvisor
Lamotte Promoteur – Nantes 4.2/5 Très bien 38 avis clients

Vous cherchez un autre bien ?

Nantes (44) - CAMPUS NEO LOIRE - Nue-Propriété

Nue-propriété

  • Appartements neufs
  • Studio

À partir de 93 000 €

Découvrir

Lancement commercial

Saint-Julien-de-Concelles (44) - LE HAMEAU DE LA ROBINIÈRE

Accession libre PTZ

  • Terrains à bâtir

À partir de 117 900 €

Découvrir

Disponibilité immédiate

Dernières opportunités

Vertou (44) - LE VERGER DES HÉRETTES

Accession libre PTZ

  • Terrains à bâtir

À partir de 127 900 €

Découvrir

Lancement commercial

Nantes (44) - KLEEZI | ILE DE NANTES

LMNP

  • Appartements neufs
  • Studio

À partir de 142 000 €

Découvrir

Lancement commercial

Offre exclusive

Nantes (44) - ALTO Signature

PTZ Jeanbrun

  • Appartements neufs
  • Du studio au 5 pièces

À partir de 185 000 €

Découvrir

Lancement commercial

Le Loroux-Bottereau (44) - VILLA OPALE

PTZ Jeanbrun

  • Appartement neuf
  • 3 pièces

219 000 €

Découvrir

Disponibilité immédiate

Dispositif Jeanbrun

Les atouts de Lamotte

De la construction de programmes résidentiels et tertiaires, à l’aménagement foncier jusqu’à l’exploitation-gestion de nos bâtiments. Durant tout le parcours d’achat dans le neuf en VEFA, nous proposons un accompagnement global et sur-mesure à chacun de nos clients

Des services et garanties

La signature électronique

Engagées dans la voie de la digitalisation, nos équipes vous proposent de signer vos documents contractuels et réservation grâce à la signature électronique.

Le pack sécurité

En matière d’immobilier, il est essentiel de sécuriser son investissement. C’est pourquoi Lamotte a imaginé Le Pack Sécurité, un service complet pour vous aider à faire le bon choix et avoir l’esprit tranquille.

Accompagnement financier

Votre projet implique d’étudier vos possibilités de financement et de trouver la meilleure des solutions. Nous avons pensé à tout pour vous faciliter l’obtention de votre prêt immobilier.

Pack services 100% acquéreurs

Achetez en toute sérénité et profitez pleinement de votre bien immobilier. Nos équipes sont là pour vous faciliter la vie, de l’obtention de votre financement à la revente.